Serratura da infilare a doppia mappa KA “57013”
La serratura da infilare 57013 è un dispositivo di chiusura a doppia mappa, progettato per porte interne o esterne che richiedono un livello standard di sicurezza, affidabilità e compatibilità con impianti in KA (Keyed Alike), ovvero con chiave unica per più serrature identiche.
Caratteristiche costruttive
-
Scatola serratura: acciaio con rivestimento zincato, resistente alla corrosione e all’usura nel tempo.
-
Frontale (piastra): acciaio zincato, con superficie protetta contro agenti ossidanti.
-
Catenaccio: realizzato in acciaio e zincato, con movimento fluido e robustezza adatta all’applicazione su porte in legno o blindate di primo livello.
-
Meccanismo interno: sistema a doppia mappa, che garantisce un buon livello di sicurezza meccanica tradizionale.
Dotazione
-
1 borchia interna in acciaio, in finitura coordinata.
-
1 chiave unica KA, che permette di aprire più serrature della stessa serie con la medesima chiave.
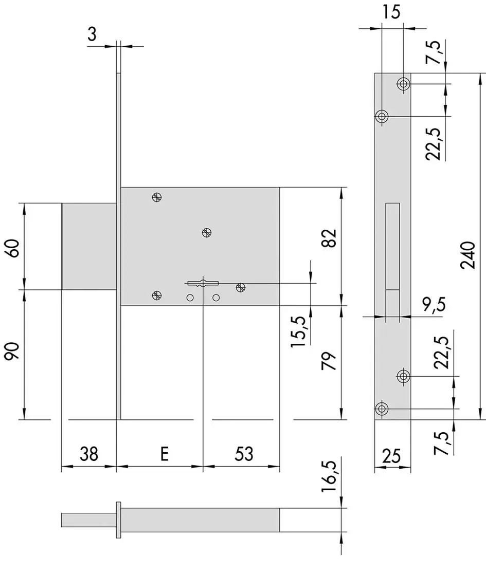
Specifiche dimensionali
-
Altezza scatola: 82 mm
-
Mandate: 4
-
Entrate disponibili (E):
-
60 mm
-
70 mm
-
(Ulteriori misure di dettaglio sono indicate nell’immagine fornita dal produttore.)


