Serratura da Infilare CISA a Doppia Mappa – Art. 57255.60.0 (Ambidestra)
L’Art. 57255.60.0 è una serratura di alta sicurezza per porte in legno o metallo. Grazie alle 4 mandate, il catenaccio raggiunge la massima profondità di chiusura, offrendo una resistenza meccanica superiore. La predisposizione per le aste supplementari permette di blindare l’anta in tre punti (laterale, alto e basso), gestendo tutto con un’unica chiave.
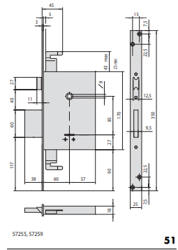
⚙️ Caratteristiche Tecniche
-
Meccanismo: Doppia mappa a 4 mandate (massima sicurezza meccanica).
-
Tipo Chiusura: Triplice (Catenaccio centrale + predisposizione per aste verticali).
-
Misure Meccaniche:
-
Entrata: 60 mm.
-
Interasse: 85 mm.
-
Frontale: 25 mm in acciaio satinato nichelato.
-
-
Funzionamento:
-
Scrocco: Reversibile e nichelato, per adattarsi a porte destre o sinistre.
-
Catenaccio: In acciaio nichelato a piastre rinforzate.
-
🛡️ Materiali e Sicurezza
-
Scatola: In acciaio con rivestimento zincato, progettata per durare nel tempo e resistere ai tentativi di scasso.
-
Finitura: Il frontale satinato nichelato offre una protezione eccellente contro l’ossidazione e un impatto estetico moderno.
-
Efficacia: La combinazione delle 4 mandate e della triplice chiusura la rende ideale per porte esterne o ingressi principali.
📦 Dotazione Accessori (Kit Sicurezza Totale)
Questo modello viene fornito con un set completo di componenti per l’installazione delle chiusure supplementari:
-
Chiavi: 3 chiavi a doppia mappa originali CISA.
-
Finiture: Copritoppa interno (Art. 1.06143.00.0) ed esterno (Art. 1.06082.00.0).
-
Kit Chiusure Supplementari: * Due piastrini guida per prolunghe aste (Art. 1.06085.00.0).
-
Contropiastra superiore (Art. 1.06084.00.0).
-
-
Contropiastre: Contropiastra laterale Art. 1.06272.00.0 e viti di fissaggio.



