Serratura da infilare a doppia mappa – Modello 57016
La serratura 57016 è una serratura da incasso con chiave a doppia mappa, progettata per porte interne ed esterne che richiedono un livello di sicurezza tradizionale ma affidabile. Realizzata con materiali resistenti alla corrosione e dotata di predisposizione per chiusure supplementari, garantisce solidità, durabilità e compatibilità con i principali standard installativi.
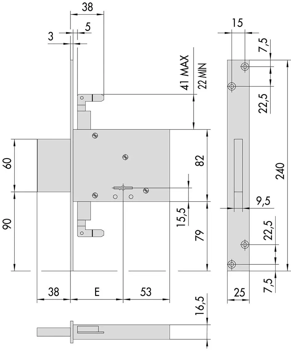
Caratteristiche costruttive
-
Scatola
-
Materiale: lamiera d’acciaio
-
Trattamento superficiale: rivestimento in zinco per protezione contro ossidazione e agenti atmosferici
-
Altezza scatola: 82 mm
-
-
Frontale (piastra frontale)
-
Materiale: acciaio
-
Finitura: zincata
-
-
Catenaccio
-
Materiale: acciaio
-
Trattamento: rivestimento in zinco
-
Mandate: 4 (corsa in quattro scatti per una chiusura più sicura e progressiva)
-
-
Predisposizione per chiusure supplementari
Permette l’integrazione con sistemi aggiuntivi (es. aste verticali o dispositivi di rinforzo).
Misure disponibili
-
Entrata (E): 60 mm
-
Entrata (E): 70 mm
(Dettaglio completo delle quote come da immagine allegata.)
Dotazione inclusa
-
Borchia interna in acciaio
-
2 chiavi a doppia mappa
-
Coppia di boccole filettate M8


